優勢特點:CPC線軌HRC45FL屬于重載系列直線導軌,組合高度為60mm,滑塊安裝孔為80*100mm。滑塊跟導軌間末制單元設計,使線形導軌同時承受上下左右等各方向的負荷。


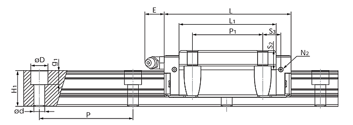
| 型號 | 組裝尺寸 | 導軌尺寸(mm) | 滑塊尺寸(mm) | |||||||||||||
| H | W2 | W1 | H1 | P | D×d×g1 | W | L | L1 | h2 | P1 | P2 | M×g2 | M1 | T | N1 | |
| HRC45FL | 60 | 37.5 | 45 | 39 | 105 | 20×14×17 | 120 | 171.5 | 138.5 | 50.7 | 80 | 100 | M12×18 | M10 | 19 | PT1/8×12.5 |
| 型號 | 滑塊尺寸(mm) | 額定負荷(KN) | 靜扭矩(Nm) | 重量 | ||||||||||
| N2 | N3 | E | S1 | S2 | S3 | S4 | C | Co | Mro | Mpo | Myo | 滑塊(g) | 導軌(g/m) | |
| HRC45FL | M6×10.5 | P5 | 14 | 11.1 | 18.1 | 35 | 35 | 89.5 | 169.1 | 4430 | 3460 | 3460 | 4280 | 10530 |
臺灣CPC直線導軌HRC45FL你不可不知的五點知識
按照滾珠在直線導軌和滑塊之間的接觸牙型對直線導軌副進行分類,主要有歌德式(GothicType)牙型和圓弧式牙型歌德式也稱作兩列式,圓弧式也稱作四列式。通常,直線導軌副的選用必須根據使用條件、負載能力和預期壽命選用。但由于直線導軌的壽命分散性較大,為了便于選用直線導軌副,必須先清楚以下幾個重要概念。
1、CPC直線導軌HRC45FL的精度等級:一般直線導軌副的精度分為普通級、高級、精密級、超精密級和超高精密級五種。 主要檢測指標一般有三個,一是滑塊C面對滑軌A面的平行度,二是滑塊D面對滑軌B面的平行度,三是行走平行度,所謂行走平行度是指將直線導軌固定在基準座平面上,使滑塊沿行程行走時,導軌與滑塊基準面之間的平行度誤差。
2、CPC直線導軌HRC45FL的預壓力:所謂預壓力是預先給予鋼珠負荷力,利用鋼珠與珠道之間負向間隙給予預壓,這樣能夠提高直線導軌的剛性和消除間隙。按照預壓力的大小可以分為不同的預壓等級。預壓力從有間隙到0.13C不等。C值為動額定負荷。在選用的過程中可以根據計算結果隨時返回到前面的步驟進行重新選擇和設定。計算滑塊最大負荷時要確認選用的直線導軌靜安全系數應該超過推薦表中所列值。 如果所選用的直線導軌副剛性不足,可以提高預壓力,加大選用尺寸或增加滑塊數來提高剛性。
3、CPC直線導軌HRC45FL的額定壽命:所謂額定壽命是指一批相同的產品,在相同的條件及額定負荷下,有90%未曾發生表面剝離現象而達到的運行距離。直線導軌副使用鋼珠作為滾動體的額定壽命,在基本動額定負荷下為50km。
4、CPC直線導軌HRC45FL的基本靜額定負荷(Co):所謂基本靜額定負荷是指在負荷方向和大小均等的狀態下,在受到最大應力的接觸面處,鋼珠與滾道表面的總永久變形量恰為鋼珠直徑萬分之一時的靜負荷。由于在機械加工方面的精度要求愈來愈高,使得對加工機械上的重要零組件直線導軌的精度等級劃分也越來越細。
5、CPC直線導軌HRC45FL基本動額定負荷(C):所謂基本動額定負荷是指一批相同規格的直線導軌副,在負荷方向和大小均等的狀態下,經過運行50km后,90%的直線導軌其滾道表面不產生疲勞損壞(剝離或點蝕)時的最高負荷。
上一篇:HRC35FL
下一篇:HRC55FL
















